enquire
Please use a contact form on an alternate page, this form is currently disabled



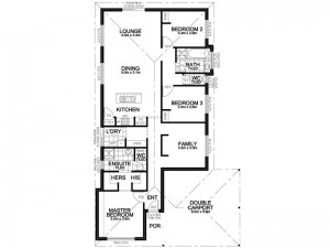
to suit 13m frontage
- Three bedrooms
- Master Bedroom with Ensuite
- Hers& His Walk-in robe
- Kitchen with breakfast bench
- Open-plan Kitchen, Dining & Lounge area
- Separate Family room
Bedrooms:
3
Bathrooms:
2
Phone Number:
1300 589 322
Design Type:
12 to 14m
Structure - 100mm slab to all homes – not 85mm
- Reinforcement to footings – not mass concrete
- Internal verticore bricks with cement to perpindicular joints – not fastwalls without perp joints
- Complete engineered structure for peace of mind
- Better First Homes is owned and managed by Certified Practicing Engineers – Structure is Paramount.
Ensuite, Bathroom & Laundry - European styled hand held showers
- Vitreous china basins (not plastic)
- Dual Flush full china toilet suite (not plastic cistern)
- Chrome flick mixer tapware throughout
- Double chrome towel rails (not plastic)
- Chrome toilet roll holders and soap dish
- Ceramic soap dish to showers
- Chrome floor wastes throughout (not plastic)
- Excellent range of ceramic wall and floor tiles
- Shower wall tiling to 2m high
- Vanity cupboards (full depth) with tiled hobs
- Soft closer hinges to all cupboards
- Exhaust fan to Ensuite, Bathroom and WCs
- Panel and rod shower screens to bathroom and ensuite
- Mirrors up to 2m high to bathroom and ensuite
- Acrylic 1525mm Bath (where detailed)
- Stainless steel laundry 'sud–saver' trough
- Linen cupboards with 4 x shelves
- Drawers on soft close rollers (where applicable)
- Large selection of laminates from top brands
Utility Services - Double power points throughout (not single)
- External light point outside every external door
- Phone and TV points included (wiring by others)
- 10m sewer allowance past last connection point
- 10m water connection allowance
- 6m water connection allowance
- 2 external garden taps
- Instantaneous gas hot water system
- Weather draft seals to entry doors
Kitchen Features - European styled Stainless Steel Hotplate
- European styled Stainless Steel Fan Forced Oven
- European styled Stainless Steel Canopy Rangehood
- Full height tiled splashback up to the Rangehood
- Custom built deluxe cupboards
- Large selection of laminates from top brands
- Choice of post form or tight form kitchen benchtops
- ABS edging to all cupboards
- Drawers on soft close rollers
- Soft closer hinges to all cupboards
- 1 3/4 bowl sink in stainless steel with Flick Mixer
- Microwave recess/shelves (where drawn)
- Dishwasher recess, plumbing and power
| Internal Features - Built in robes with shelf and rail
- Metal corner beads to all internal plaster walls
- R4.1 Roof Insulation to house and garage included
- Quality door levers throughout (not door knobs)
- Full internal painting (excluding walls)
- Deluxe steel door frames
- Readicoat internal doors
- Cove cornices throughout
External Features - Double clay brick construction – wide selection of clay bricks available (builder standard range)
- Render to front elevation and 2c face bricks to remainder of house
- Colorbond roof cover
- Colorbond gutters
- Solid core entry doors
- 6m width paved driveway
- Cream mortar with rolled joints
- Flyscreens to all windows and sliding doors
- Brikmakers square concrete pavers to Driveway, Alfresco, Entry and Laundry
- 25 Degree Roof Pitch as standard
- Full external painting
- Front and rear garden taps
Safety and Security - Double lock–up garage with remote control sectional door (where applicable)
- Feature Corinthian Urban Range of front doors
- Tri Lock to entry door
- Privacy locks to Bath, Ensuite, WC and Master Bedroom
- 'High Quality' Jasons Windows
- Window locks with key locking for vented position
- Sliding door locks with key locking for vented position
- Electrical safety switch
- Minimum 2 hardwired smoke alarms
- All exhaust fans and rangehoods flued to external air as standard
- Anti–scald tempering valve to hot water supply
Professional Services - Six months maintenance period
- Home indemnity insurance
- HIA lump sum fixed price contract
- Cost of plans and drawings included in the price
- Full site repeg
- Full site survey
- Local Shire Building Licence Fees
- Water Corporation Approval Fee
- Full working drawings and specifications
- Termite treatment in accordance with the Building Code of Australia
- Site and house clean
- Energy Efficiency Assessment (not outcomes)
- 25 years construction experience in WA
|